Unser Traumhaus.
ECON HAUS Stadtvilla Rottbitze.
Sinnliche Eleganz in urbanem Charme.
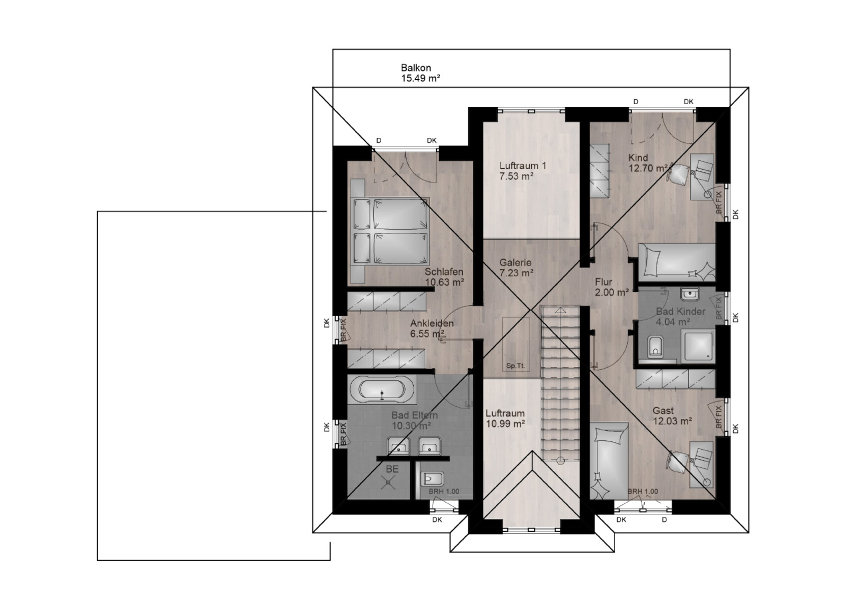
Gerne passen wir die Grundrisse auch auf Ihre speziellen Wünsche und Vorstellungen an, damit Sie sich in Ihrem Traumhaus auch rundum wohlfühlen!
Die Vorteile von unserer Econ-Das Haus STADTVILLA.
Eine Stadtvilla bietet viel Wohnfläche, repräsentative Architektur und flexible Raumgestaltung.
Repräsentative Architektur:
Privatsphäre und Sicherheit:
Flexibilität:
Individuelle Gestaltung:
Großzügiges Raumangebot:
Optimale Flächenausnutzung:
Kombination von Stadt- und Landleben:
Tags: 140-160qm
Wohnfläche Gesamt: 150,70 m²
Wohnfläche EG: 85,20 m²
Wohnfläche OG; 65,50 m²
Geschosse: 2
Zimmer: 11
Entdecken Sie mehr Stadtvilla-Designs von ECON HAUS.
Stadtvilla Wassenach
Stadtvilla Sessenhausen
Stadtvilla Lautzert
Stadtvilla Remagen
Stadtvilla Filsen
Stadtvilla Rottbitze
Stadtvilla Rüngsdorf
Jetzt Vorteile sichern!
Unser ECON-HAUS Infopaket anfordern.
Aktuelles zum Thema Massivhaus von ECON - DAS HAUS.
Katalog 2025
Unser kostenloses Infopaket enthält alles, was Sie über unsere Leistungen, Angebote und Vorteile wissen müssen – kompakt, übersichtlich und jederzeit abrufbar.
Energiekosten
Ein Haus von ECON HAUS bedeutet nicht nur massives Bauen in bester Qualität, sondern auch nachhaltiges Energiesparen auf lange Sicht. Denn wer heute baut, denkt an morgen.
Unser Qualitätsversprechen
Unsere zufriedenen Kunden
Rezensionen von Google
Erst einmal vielen lieben Dank an Econ Haus für die letzten Monate! Die Zeit, die Nerven und das Verständnis. Es ist einfach eine verrückte Zeit und ich bin wirklich traurig, dass die Umsetzung in der Form nicht stattfinden kann. Jeder zukünftige Bauherr und Bauherrin, der/die einen kompetenten Partner im Bereich Massivbau sucht, ist bei Econhaus wirklich bestens aufgehoben. Mein Bauvorhaben wurde bis zur Vorstufe Baugenehmigung perfekt begleitet und ich hatte wirklich keine leichte Anfrage gestellt. Ein Neubau mitten im Bestand und dann noch Denkmalschutz schreckten Sie nicht ab! Andere Anbieter wimmelten mich direkt beim ersten Telefonat ab. Bauen nach neuestem Standard aber nicht 0815, das Team nahm sich so viel Zeit und erarbeitete mit mir zusammen eine perfekte Planung mit Liebe zum Detail. Großes DANKE!!
Wir haben mit Econ Haus unseren Traum der eigenen vier Wände verwirklicht. Unser Bauleiter war immer erreichbar bzw. hat sich bei Anliegen sofort gemeldet und gekümmert. Für Probleme gab es immer eine Lösung. Wir sind rundum zufrieden, würden immer wieder mit Econ Haus bauen und empfehlen es auch unseren Freunden und Verwandten.
Wir wurden durch Herrn Hackfort der Firma Econ zu unserem Bauvorhaben beraten. Von der ersten Kontaktaufnahme, über Rücksprachen bis hin zur kostenlosen Unterbreitung eines Angebots inklusive kostenlosem Entwurf war der Service durch Herrn Hackfort wirklich hervorragend. Wir hatten in dieser Zeit Kontakt zu wirklich vielen anderen Baufirmen, so dass wir wissen, dass diese Art von Service nicht selbstverständlich sind. Am Ende waren es wirklich nur Kleinigkeiten auf Spitzenniveau, weswegen wir uns für ein anderes Unternehmen entschieden haben. Aus diesem Grund kann ich hier nur auf den Service und die Beratung eingehen... In diesen beiden Punkten jeoch, kann ich die Firma Econ und vor allem Herrn Hackfort nur wärmstens empfehlen! Vielen Dank!
Unsere Partner
Nehmen Sie jetzt Kontakt auf!
Wir freuen uns auf Ihre Nachricht.
Zuhause angekommen.
Unser Traumhaus mit ECON Haus.
